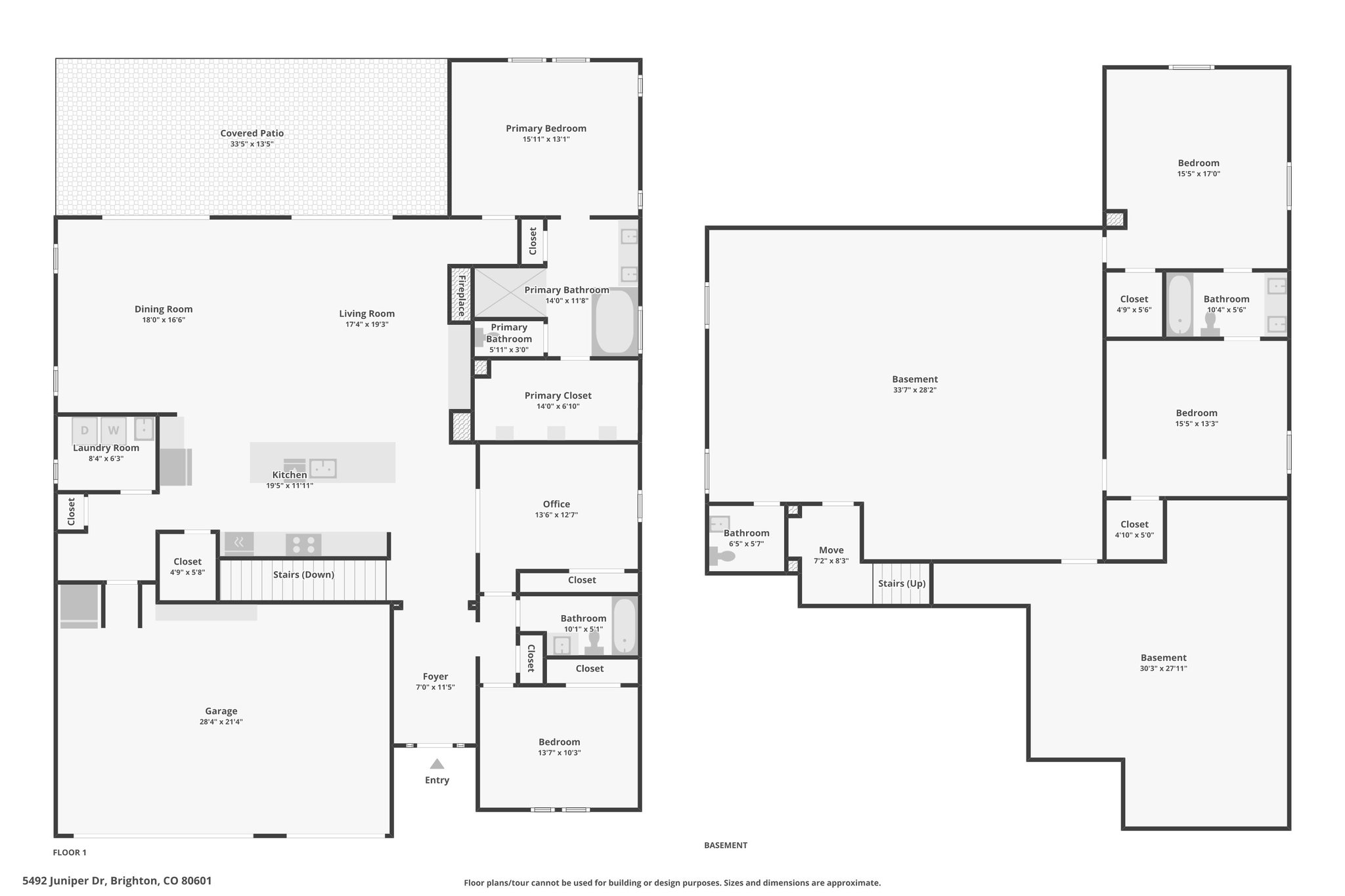
5492 Juniper Dr, Brighton, CO 80601
Toggle Navigation
Images
Floor Plans
3D Tour
Map
5492 Juniper Dr
Brighton, CO 80601
Scroll to Content
Images
Slideshow
Photo Grid
Hide
Previous
Next
Show more
Floor Plans
Slideshow
Photo Grid
Hide
Previous
Next
3D Tour